Resumen
- Chalet Pareado
- 5
- 4
- 313 m²
- 254 m²
- 2006
Descripción
Kétier les presenta este estupendo chalet pareado, que destaca por su luminosidad. Tiene una superficie construida de 313 m² sobre parcela de 254 m², situado en una de las zonas más exclusivas de Pozuelo de Alarcón, en una calle muy tranquila y con poco tráfico.
La vivienda, de reciente construcción, se encuentra en perfecto estado de conservación, impecable, para entrar a vivir. Se distribuye en cuatro espaciosas plantas, con ascensor en todas ellas.
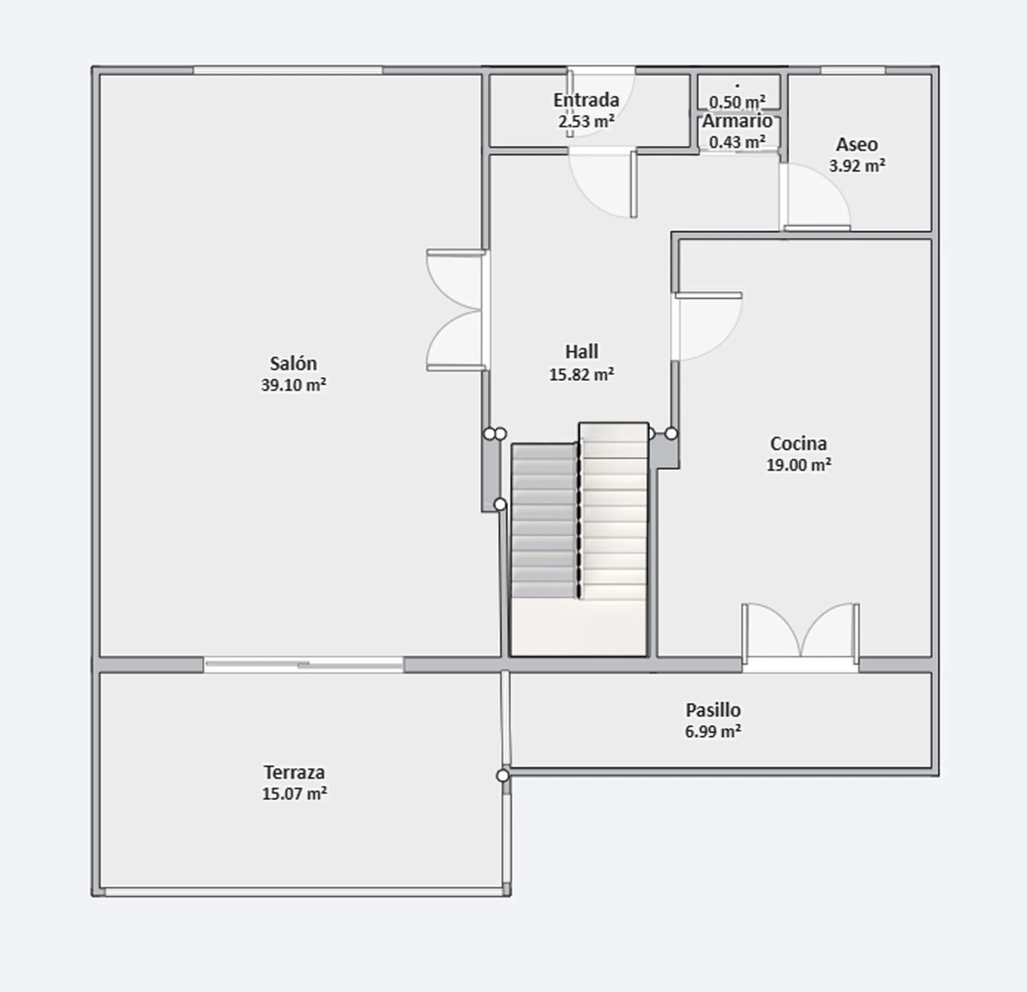
Planta Principal
Accedemos a la vivienda a través de un hall, donde se sitúa un coqueto aseo de cortesía, armario gabanero, acogedor salón con gran ventanal, y unido al mismo encontramos el comedor con amplia cristalera que inunda de luz la estancia con el sol de la mañana y mediodía, por la que damos paso, a través de la terraza, al jardín y a la piscina.
Desde el salón accedemos también, a través de una puerta corredera, a la cocina, totalmente equipada, con muebles y electrodomésticos de alta gama, amplios ventanales, orientados al este y al sur, que la inundan de luz desde el amanecer. El comedor y el salón son totalmente diáfanos.
Primera Planta
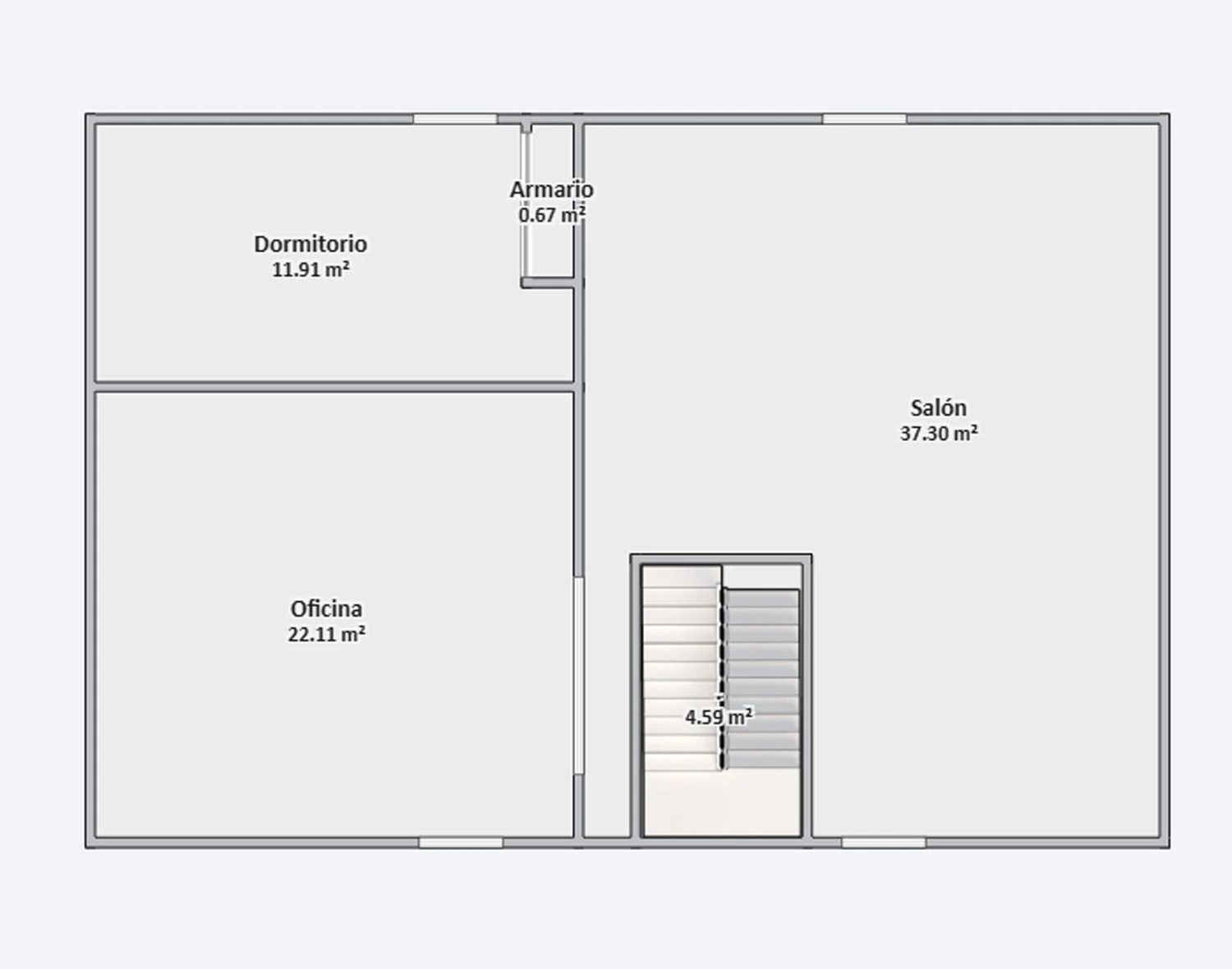
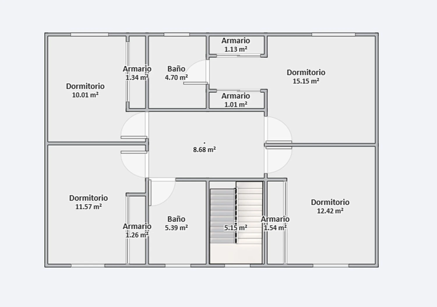
En este espacio disponemos de tres estupendos dormitorios, uno de ellos actualmente destinado a estudio o despacho, todos con armarios empotrados de gran capacidad, y dos amplios cuartos de baño completos, dando servicio, uno de ellos, a dos de las habitaciones, con coqueto balcón en una de ellas, y el otro, fantástico, en mármol travertino, con bañera hidromasaje, en suite con el dormitorio principal.
Ático
En la última planta encontramos una preciosa suite, con mucho espacio y un vestidor que da acceso a un gran cuarto de baño con bañera hidromasaje y duchas separadas.
Planta Baja
Consta de amplia habitación, que puede ser destinada a invitados, o bien de servicio, con ventana al jardín e hilera impresionante de armarios empotrados, cuarto de baño completo.
En esta planta también existe una habitación destinada a zona de lavado y planchado, con armarios empotrados, despensa, cuarto para la maquinaria del ascensor con espacio para trastero, y puerta de acceso a un cómodo garaje con capacidad para dos coches y puertas motorizadas.
Jardín
En el exterior encontramos la piscina privada y jardín con césped natural, preciosos árboles y plantas, todo muy cuidado. Suelo de madera alrededor de la piscina y pérgola.
Calidades
El chalet cuenta con excelentes calidades, entre las que destacamos:
- Paredes lisas
- Puertas lacadas en blanco
- Suelo de madera natural de Jativa
- Escaleras en mármol
- Puerta de seguridad
- Video portero
- Aire acondicionado en toda la vivienda, con aire frío y caliente
- Gas natural para calefacción y ACS
- Persianas eléctricas
- Ventanas con rotura de puente térmico
- Alarma interior y perimetral.
- Armarios empotrados en todas las estancias.
El entrono
Excelente ubicación, tanto por su entorno privilegiado, como por su buena comunicación: fácil acceso a las carreteras M-30, M40, M-50, M503 y A-6, y a la estación de Renfe El Barrial, además de estar bien conectado mediante varias líneas de autobús. Se encuentra enclavado en una zona tranquila y segura, pero a la vez dispone de todo tipo de servicios alrededor, se puede ir caminando a Pozuelo Estación, polideportivos, gimnasios, centros de salud, hospitales, y muy cerca de los más prestigiosos centros educativos, nacionales e internacionales. Rodeado de parques y zonas verdes así como carril bici. Muy próximo al Monte del Pilar. A un paso de los Centros Comerciales Hipercor Pozuelo, el Torreón, Zielo Shopping y Sexta Avenida. Gran diversidad de servicio de ocio, cultura y restauración en la zona. Contáctenos para más información o para organizar una visita, estaremos encantados de atenderle. …
Características
Detalles
-
ID MLS-3516-00532
-
Precio 1.140.000€
-
m² construidos 313 m²
-
m² parcela 254 m²
-
Dormitorios 5
-
Baños 4
-
Plazas de garaje 2
-
Nº de Plantas 4
-
Año de contrucción 2006
-
Tipo Chalet Pareado
-
Estado Baja, Vendido
-
Aseos 1
Detalles adicionales
-
Gastos de Comunidad 0€
Certificado Energético
-
Certificado de eficiencia energética: D
- A
- B
- C
- | Clase DD
- E
- F
- G
Dirección
Abrir en Google Maps-
Localidad: Pozuelo de Alarcón
-
Provincia: Comunidad de Madrid
-
Código Postal: 28224
-
Zona/Urbanización: El Paular
Inmuebles similares
Nota:
1. Los m² que ofrece Kétier en esta página web han sido proporcionados por los propietarios o extraídos del catastro en caso de que el propietario los desconozca.
2. La descripción e información de los inmuebles puede contener errores. Se muestra un título informativo y no es contractual ni vinculante.
3. No cobramos honorarios al comprador.






































































