Summary
- Standalone House
- 5
- 5
- 465 m²
- 585 m²
- 1927
Description
In one of Madrid’s most sought-after neighborhoods, within a private gated community with perimeter video surveillance, Ketier presents a detached mansion dating back to 1927, completely renovated to offer a contemporary living experience without sacrificing its original architectural character. A truly unique property, one of a kind: 465 m² built on a 585 m² plot, distributed over four floors and connected by a six-person elevator, with a garden, terraces, and an indoor garage for two vehicles.

The location combines the best of both worlds: a low-density, quiet and discreet residential environment, and an immediate connection to the city center thanks to being located just minutes from the center, quick access to the M-30 and a very solid public transport network.
Why is it an exclusive home?
- Small palace with historical identity (year 1927) and comprehensive renovation focused on modern comfort.
- Interior elevator and adapted housing (a real differentiating value in urban single-family housing).
- Marble floors in main rooms and a bright aesthetic with large openings to the outside (according to photographic material provided).
- Private garden with the possibility of adding a swimming pool, terraces and additional parking.
- Air conditioning and equipment: ducted air conditioning (except for the upper floor which uses split systems), natural gas heating, three-phase installation and support from solar panels in the boiler room.
Floor plan
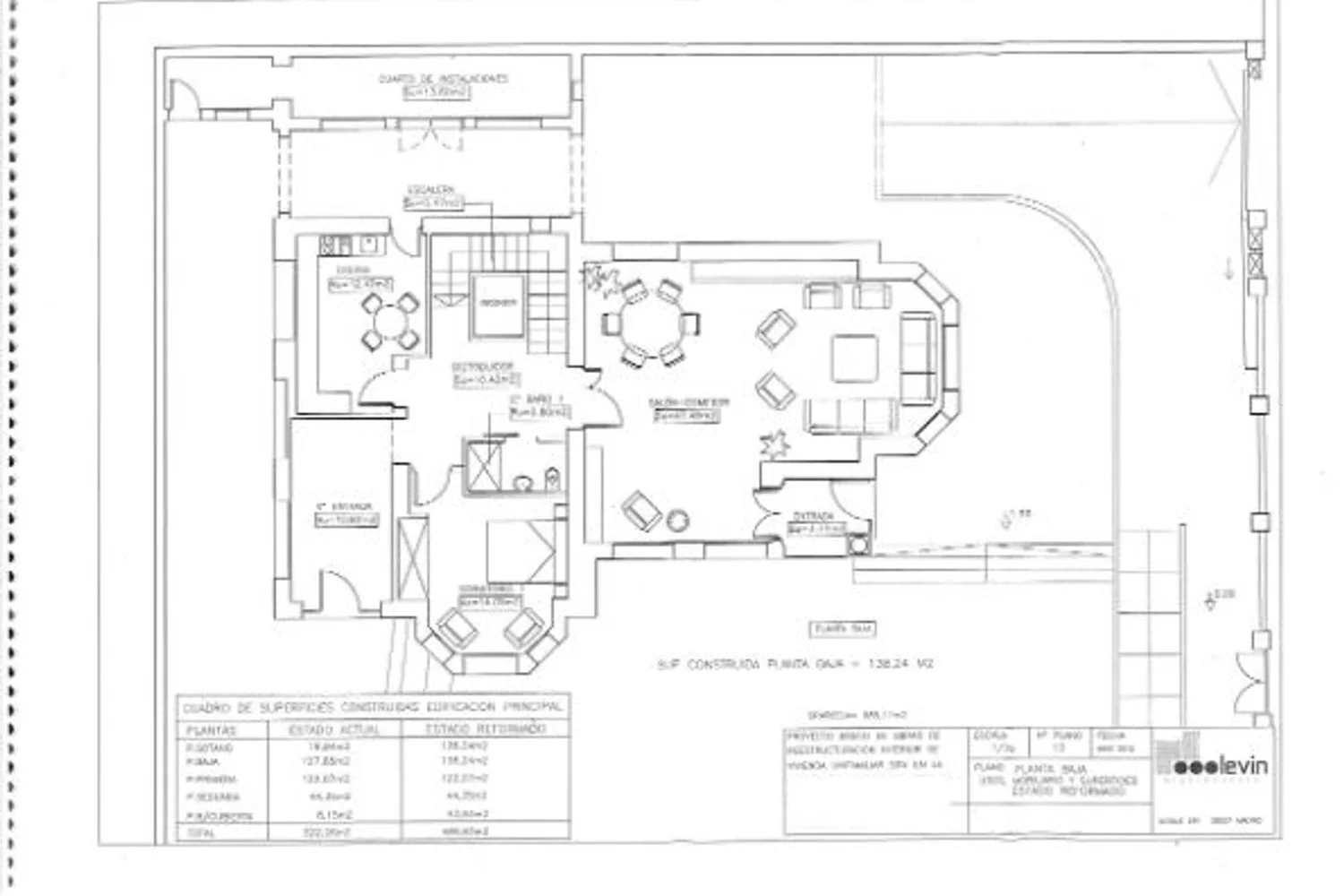
Main floor: stately entrance and large marble hall
The arrival at the property sets the tone. Access is through a fine wood door with stained glass, equipped with a fireproof armored lock, a statement of security and presence from the very first step.
Social life is organized on this floor:

- The main attraction: a 50 m² living room with marble floors, spacious, representative and with that proportion that is hard to find in urban single-family homes.

- Kitchen equipped with furniture, with a functional layout for daily use.

- A suite bedroom, very valuable as a premium guest bedroom or for those who want single-floor living (without giving up the rest of the house).
The house stands out for its brightness, windows with grilles and a feeling of spaciousness, with a clean aesthetic that facilitates both a contemporary and a more classic interior design.
First floor: master suite and second suite, plus office/living room
The first floor is geared towards rest and work, with a coherent layout for family or diplomatic/representative use:

- Master bedroom with dressing room, wardrobe with built-in safe and en suite bathroom with whirlpool bath and separate shower.
- Second bedroom with private bathroom, maintaining the standard of privacy and comfort.
- An elegant living room/office, perfect as a library, private office, music room or second living room.
This floor plan, by design, clearly separates the “nighttime area” from the social rhythm of the main floor. Furthermore, the elevator enhances intergenerational accessibility (families) and institutional use (embassies/representative residences), which is very much in line with the location and type of property.
Second floor: multipurpose room + private terrace
On the top floor, the house offers a flexible space: an office/multipurpose room, a toilet and a private 15 m² terrace designed to disconnect, read or enjoy a coffee in privacy.

On a technical level, this plant has split air conditioning (instead of ducts), which allows for adjusting consumption and uses per room independently of the rest.
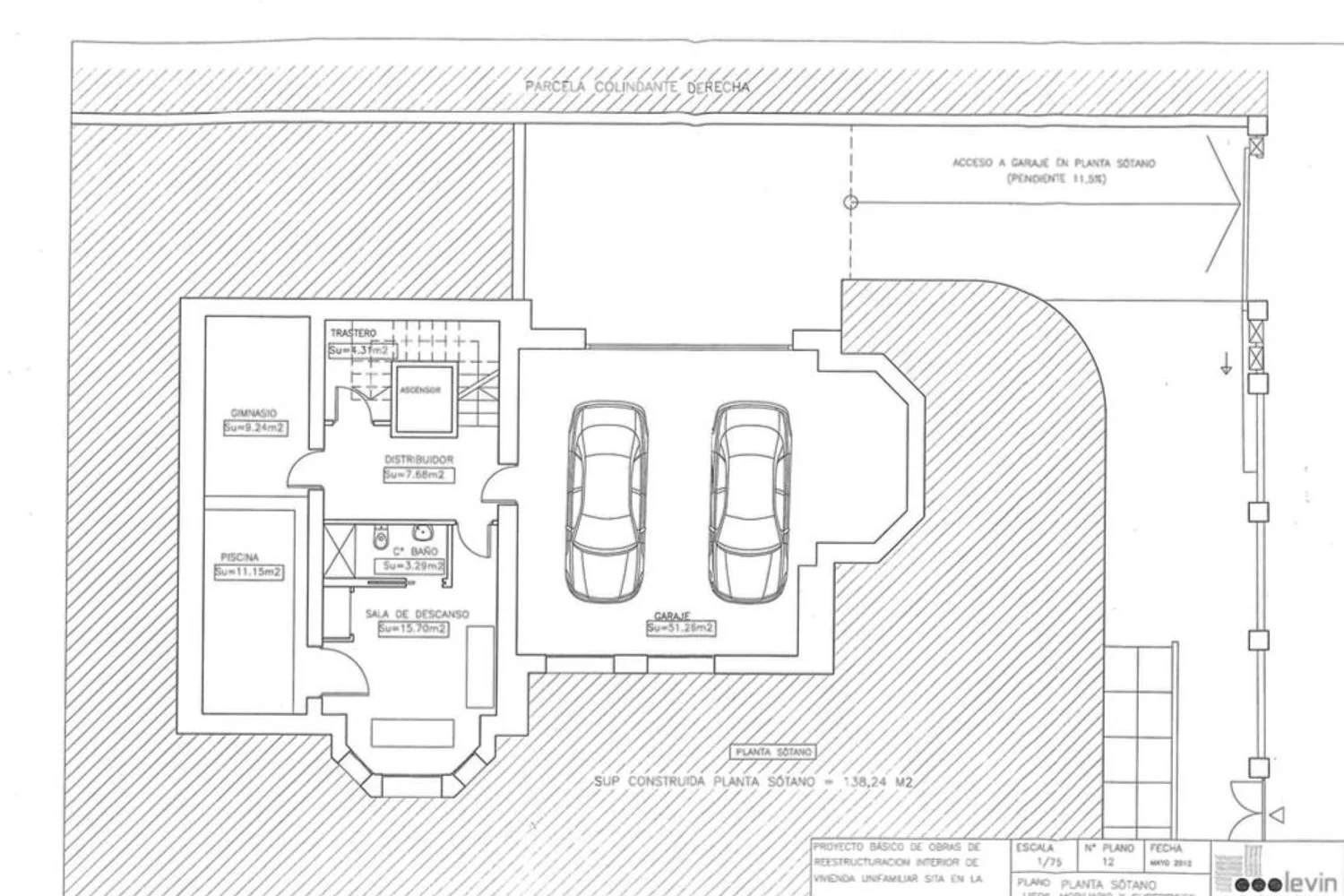
Basement level: service area, leisure area and garage
The basement level is designed as a logistics and multipurpose base that frees the main floors from “domestic noise”.

Here we find an auxiliary kitchen with a pantry, ideal for supporting events, catering, or separating the day-to-day from the main social area.

It also includes a bedroom, bathroom, and a separate living room, perfect as a family room, TV room, guest area, or even space for live-in staff. This floor allows for a “house with amenities” lifestyle in the heart of Madrid: storage, culinary support, independence for guests or staff, and seamless mobility.

Another strong point of this floor plan —in a luxury urban home— is the enclosed garage for two vehicles, with direct access to the interior, which provides security, privacy and real convenience in everyday use.
Garden, terraces and outdoor parking
The exterior is a key feature of this small palace in Madrid: a garden area, several terrace areas, a storage room and a boiler room with solar panel support, plus three outdoor parking spaces and provision for a swimming pool connection.

The combination of garden and terraces allows for different uses: a chill-out area, a summer dining area, a family play area, or a custom-designed landscape to further enhance the presence of the property.
Quality, comfort and performance
The house integrates features that are difficult to find in an urban single-family home:
- Air conditioning (ducted, except top floor).
- Individual heating by natural gas.
- Three-phase electrical installation, interesting for profiles that value available power and electrical stability.
- Built-in wardrobes, storage room and south/west orientation (light and hours of sunshine).
- Housing with adapted access (differentiating factor in replacement and long-term value).
The area: Colonia Ciudad Jardín (Chamartín, Madrid), transportation, schools and services
Living in Ciudad Jardín means choosing classic residential Madrid, with tree-lined streets and a very stable urban character. Connectivity is outstanding: quick access to the M-30 ring road and a direct connection to Metro Line 4, with stations like Alfonso XIII located within the neighborhood.
For leisure and outdoor activities, Berlin Park stands out, a key urban green space in the district, with green areas, walkways and sports and children’s areas.
For shopping, dining and everyday services, a nearby and very convenient spot is the Arturo Soria Plaza, a well-established shopping center in the northeast of the city.
In the educational sector (especially relevant for international profiles), the Chamartín area boasts renowned institutions such as Colegio San Agustín. Also noteworthy is Colegio Nuestra Señora del Recuerdo, with its long and distinguished educational history in the city.
In terms of healthcare, the area boasts top-tier hospitals and healthcare facilities within easy reach: the San Rafael University Hospital in Chamartín and the Vithas Madrid Arturo Soria University Hospital along the Arturo Soria axis. In addition, there are clinics, pharmacies, and other public and private healthcare services typical of a well-established residential area.
A unique opportunity in the “urban mansion” segment of Madrid
This property brings together what today’s luxury buyer values: history and architecture, a renovation focused on comfort, security and privacy, and a strategic location within the city of Madrid.
If it matches your search —family home, state residence or investment property in a rare type— at Ketier we can arrange a visit in person or virtually at your convenience.
Details
-
ID M-1766029
-
Price 3.750.000€
-
m² built 465 m²
-
m² plot 585 m²
-
Bedrooms 5
-
Bathrooms 5
-
Parking spaces 2
-
Nº of flors 4
-
Year of construction 1927
-
Type Standalone House
-
Status For Sale
Additional details
-
Orientation South, West
Address
Open in Google Maps-
Location: Madrid (Capital)
-
State: Madrid
-
Postal Code: 28002
-
Neighborhood: Chamartín
Schedule a tour
Calculate the Mortgage
-
1º payment
-
Importe del Préstamo
-
Cuota Mensual
Similar Properties
Luxury villa in La Chopera (Las Rozas, Madrid) with pool and large garden
Las Rozas (Madrid), La Chopera DetailsExceptional Villa in Villafranca del Castillo (near Madrid)
Villanueva de la Cañada (Madrid), Villafranca del Castillo DetailsNote:
1. The square footage offered by Ketier on this website has been provided by the owners or extracted from the land registry if the owner does not know it.
2. The description and information of the properties may contain errors. The title is shown for informational purposes only and is not contractual or binding.
3. We do not charge the buyer any fees except for real estate personal shopper services.
