Detallles
- Piso
- 3
- 3
- 138 m²
- 2026
Descripción
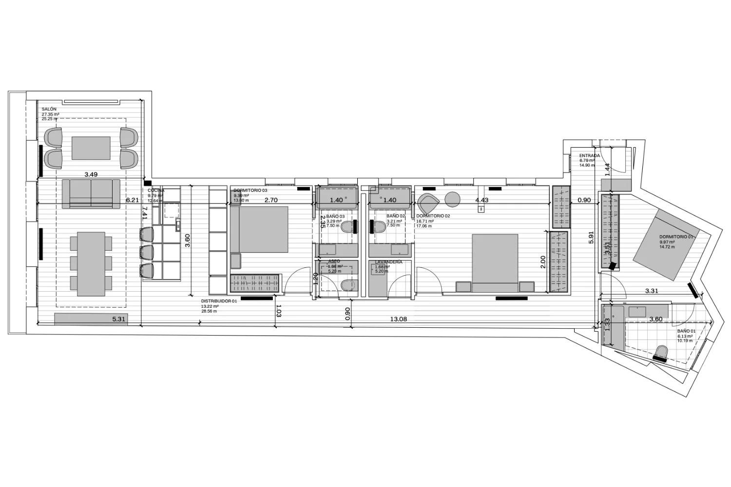
Situada en plena calle Alcalá, en pleno Barrio de Salamanca, nace esta vivienda de aprox. 138 m² completamente reformada, lista para estrenar, pensada para quienes buscan diseño, confort y una distribución premium en una de las direcciones más consolidadas de Madrid.
Aspectos destacados:
- Ubicación prime: Calle Alcalá · Barrio de Salamanca (Madrid)
- Superficie construida aprox.: 138 m²
- Distribución premium: 3 dormitorios en suite + aseo de cortesía
- Zona de día protagonista: salón 27,35 m² + cocina integrada 9,79 m²
- Lavandería independiente: 1,68 m²
- Edificio representativo: 1930
- Conexiones inmediatas: Metro Manuel Becerra (L2, L6) y Goya (L2, L4)
- Madrid caminable: Retiro (15 min), MovistarArena (10 min), Calle Goya (5 min)
- Detalle y calidades: molduras/cornisas, foseados perimetrales, puerta oculta, suelo en tono roble

Una dirección que se vive
Hay calles que no necesitan presentación porque forman parte de la biografía de Madrid. Alcalá es una de ellas: un eje que conecta historia, cultura y vida urbana con una elegancia tranquila. La ubicación de la vivienda combina el carácter de un edificio clásico con una reforma contemporánea, cuidada hasta el detalle, para lograr un hogar moderno, cálido y sofisticado.
La reforma integral se apoya en una estética serena y atemporal: líneas limpias, una paleta neutra y recursos decorativos que elevan la percepción de calidad (molduras, cornisas y foseados), con una distribución diseñada para el confort real: amplitud en la zona social y privacidad total en la zona de descanso.
Zona de día: amplitud, luz y una cocina integrada para vivirla

La vida gira en torno a un salón de 27,35 m², generoso y proporcionado, con espacio real para diferentes ambientes: estar, comedor y una zona perfecta para trabajar o leer con calma. La luz natural acompaña durante todo el día y refuerza esa sensación de hogar amplio y bien resuelto.

La cocina (9,79 m²) se integra de forma natural en el conjunto, pensada para quien disfruta cocinando sin aislarse: práctica, elegante y con una presencia estética ordenada. Es un planteamiento ideal para recibir y para el día a día, donde cocinar, servir y compartir sucede de forma fluida.
Un plus muy valorado en vivienda prime: lavandería independiente (1,68 m²). Un espacio discreto que ayuda a mantener la cocina despejada y a organizar la logística doméstica con comodidad, reforzando esa sensación de casa siempre en orden.
Además, la vivienda incorpora un aseo de cortesía (1,68 m²), ideal cuando se reciben visitas: la zona privada permanece reservada y la casa funciona con una naturalidad impecable.
Zona de noche: tres suites, privacidad real
La zona de descanso se plantea con lógica de “hotel privado”: tres dormitorios completos en suite, cada uno con su propio baño. Una distribución premium que aporta independencia, comodidad y flexibilidad: familia, invitados o un despacho con baño propio, sin renunciar a privacidad.

Las superficies reflejan una distribución muy eficiente: Dormitorio Principal (16,71 m²) como suite principal por tamaño y presencia.

Dormitorio 2 (9,97 m²) como dormitorio secundario o despacho, también con el baño integrado en suite y armarios empotrados.

El último dormitorio Dormitorio 3 (9,39 m²) como tercera suite perfectamente resuelta, con baño propio.

Los baños, en una gama neutra tipo piedra/mármol, aportan una agradable sensación de spa urbano.
El edificio y el entorno: Salamanca, Goya y el Retiro
Esta vivienda se ubica en un edificio representativo de 1930, en una de las tramas urbanas más deseadas del Barrio de Salamanca. Un contexto que suma valor por presencia, por estabilidad de demanda y por ese equilibrio tan difícil de encontrar: vida urbana sofisticada con calles agradables y servicios de primer nivel.

El día a día aquí es especialmente cómodo, el Parque del Retiro se encuentra a unos 15 minutos a pie, el Movistar Arena a 10 minutos y el eje comercial de Calle Goya a 5 minutos. En movilidad, destaca la proximidad de Manuel Becerra (L2, L6) y Goya (L2, L4), además del acceso ágil a M-30 y A-2.
Por qué esta vivienda es ideal:
- Dirección: Calle Alcalá, Barrio de Salamanca — un enclave que siempre se demanda.
- Distribución: 3 suites + aseo + zona de día amplia y coherente, sin espacios perdidos.
- Ejecución: una reforma integral con estética atemporal, calidez en materiales y detalle arquitectónico.
¿Te gustaría visitarlo?
En Ketier organizamos visitas privadas y te acompañamos en todo el proceso con asesoramiento experto. Si este piso encaja con lo que buscas —ubicación prime, reforma impecable y tres suites reales—, estaremos encantados de ayudarte a dar el siguiente paso.
Documentos
Detalles
-
ID MAD-SAL-0088
-
Precio 1.650.000€
-
m² construidos 138 m²
-
Dormitorios 3
-
Baños 3
-
Año de contrucción 2026
-
Tipo Piso
-
Estado En Venta
-
Aseos 1
Dirección
Abrir en Google Maps-
Municipio/Localidad: Madrid
-
Provincia: Comunidad de Madrid
-
Código postal: 28009
-
Barrio/Urbanización: Barrio de Salamanca
Programar una visita
Propiedades similares
Nota:
1. Los m² que ofrece Ketier en esta página web han sido proporcionados por los propietarios o extraídos del catastro en caso de que el propietario los desconozca.
2. La descripción e información de los inmuebles puede contener errores. Se muestra un título informativo y no es contractual ni vinculante.
3. No cobramos honorarios al comprador.
