Chalet de lujo en La Chopera (Las Rozas) con piscina y gran jardín
- 2.650.000€
- 2.650.000€
Detallles
- Chalet Independiente
- 9
- 7
- 1022 m²
- 2097 m²
- 2000
Descripción
Ketier les presenta esta exclusiva villa de autor con vistas abiertas a la Sierra situada en el corazón de La Chopera (Las Rozas), una de las urbanizaciones privadas más consolidadas y prestigiosas del noroeste de Madrid, se alza esta imponente vivienda unifamiliar independiente de 1.022 m² construidos, asentada sobre una parcela de 2.097 m², que combina arquitectura atemporal, amplitud, privacidad absoluta y una calidad constructiva excepcional.

Una propiedad concebida para quienes buscan espacio, luz, tranquilidad y seguridad, a tan solo 25 minutos del centro de Madrid, con control de accesos y vigilancia 24 horas, y con vistas despejadas a la Sierra madrileña que acompañan la vivienda desde prácticamente todas sus estancias.
Arquitectura, distribución y concepto de vivienda
La casa se desarrolla en tres cómodas plantas, cuidadosamente organizadas para ofrecer una experiencia residencial fluida, funcional y elegante. Destaca su arquitectura sólida, con fachadas equilibradas, presencia de columnas y grandes ventanales que refuerzan el diálogo constante entre interior y exterior.

Los techos altos, la abundante entrada de luz natural y la orientación de la vivienda aportan una sensación continua de amplitud y bienestar. Todas las estancias principales disfrutan de salida directa al jardín, terrazas o porches, reforzando el carácter residencial y familiar de la propiedad.
Planta principal | Representación, vida social y vistas
La planta principal actúa como eje central de la vivienda y está pensada tanto para la vida diaria como para la recepción de invitados.
- Amplio hall de entrada de casi 20 m² que marca el carácter de la vivienda desde el primer momento.

- Dos grandes salones independientes, de más de 55 m² cada uno, uno de ellos con chimenea, con grandes ventanales y vistas abiertas a la Sierra. Actualmente uno de ellos esta acondicionado como despacho y otro como salón, que destaca por su luminosidad, amplitud y vistas

- Cocina de gran formato, luminosa y perfectamente dimensionada, con más de 47 m², pensada como espacio de uso intensivo y familiar.

- Comedor independiente de más de 30 m², ideal para celebraciones y reuniones.
- Aseo de cortesía.
- Gran terraza con acceso directo desde las zonas nobles, perfecta para disfrutar del entorno natural y la orientación.
Esta planta destaca por su equilibrio entre formalidad y confort, con espacios amplios pero muy bien conectados entre sí.
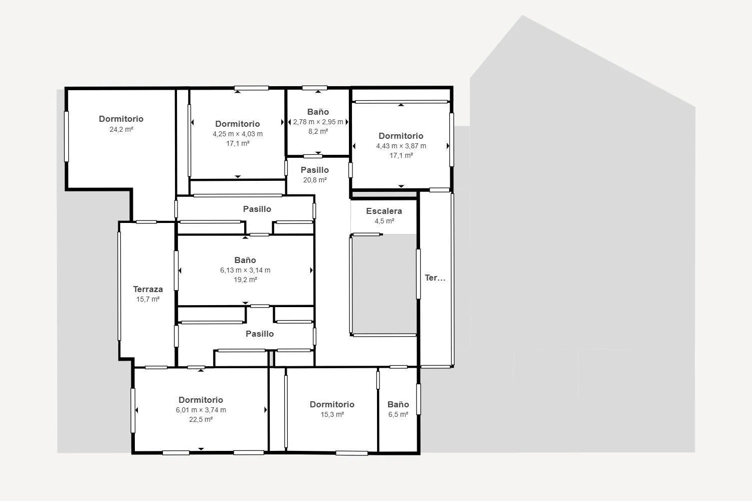
Planta superior | Zona de descanso y privacidad
La planta superior alberga la zona más privada de la vivienda, diseñada para ofrecer independencia, silencio y comodidad a todos los miembros de la familia.

- Dormitorio principal de más de 24 m², con acceso a terraza privada.

- Espectacular baño en suite de casi 20 m², con luz natural, bañera de hidromasaje, ducha independiente y claraboyas.
- Dos amplios vestidores independientes, una característica poco habitual incluso en viviendas de este nivel.

- Cuatro dormitorios adicionales, todos exteriores, de generosas dimensiones.
- Dos baños completos, uno de ellos con hidromasaje.
- Amplios pasillos que refuerzan la sensación de espacio y orden.
Una planta concebida como auténtica suite familiar, donde cada dormitorio cuenta con dimensiones poco habituales y una clara vocación residencial.
Planta inferior | Ocio, invitados y zona de servicio
La planta inferior, completamente exterior y con acceso directo al jardín, multiplica las posibilidades de uso de la vivienda.

- Gran salón-comedor de 74,6 m² con chimenea, ideal como zona de ocio, cine, celebraciones o espacio independiente para invitados.

- Cocina adicional, perfectamente equipada.
- Cuatro dormitorios, uno de ellos destinado al servicio con baño propio.
- Baño completo adaptado para personas con movilidad reducida.
- Lavandería y cuarto de plancha de gran tamaño.

- Un gran garaje cubierto con capacidad para hasta 8 vehículos.
- Cuarto de masajes.
- Despensa.
- Salas de máquinas en excelente estado de mantenimiento.
- Porche cubierto con salida directa al jardín y a la piscina.
Esta planta aporta una enorme versatilidad funcional, ideal para familias numerosas, invitados frecuentes o incluso uso profesional o representativo.
Exterior | Jardín, piscina y privacidad absoluta
El exterior de la vivienda es uno de sus grandes valores diferenciales:

- Piscina climatizada de agua salada.
- Jardín consolidado, cuidado al detalle y con zonas de descanso.

- Cenador que invita al disfrute al aire libre durante todo el año.
- Porches y terrazas que rodean la vivienda, creando múltiples ambientes.
Todo ello con un nivel de privacidad total, sin exposiciones directas y con vistas abiertas al entorno natural.
Equipamiento técnico y confort
La vivienda cuenta con instalaciones de alto nivel, pensadas para garantizar confort, eficiencia y seguridad:
- Carpinterías de alta gama con cierres y persianas automatizadas.
- Climatización y calefacción sectorizadas por estancias y plantas.
- Sistema domótico de seguridad, con cámaras y sensores.
- Excelente estado de conservación, con mantenimiento constante y actualizado.
Ubicación privilegiada en Las Rozas
Situada en La Chopera, una urbanización cerrada de referencia, la propiedad disfruta de:
- Vigilancia 24 horas.
- Excelente conexión por carretera y transporte público.
- Cercanía a Európolis, Las Rozas Village, Heron City y centros comerciales.
- Prestigiosos colegios nacionales e internacionales.
- Instalaciones deportivas, centros médicos y todos los servicios necesarios.
Una ubicación que combina entorno natural, exclusividad y cercanía a Madrid capital.
Una propiedad única para quienes buscan espacio, privacidad y excelencia residencial
Esta villa representa una oportunidad excepcional dentro del mercado inmobiliario de lujo del noroeste de Madrid: por dimensiones, parcela, estado de conservación, distribución y ubicación. Una vivienda pensada para disfrutarse a largo plazo, donde cada metro cuadrado responde a un criterio de calidad y funcionalidad. Ponte en contacto con nosotros para organizar un visita y conocer tu próximo hogar.
Características
- Aire Acondicionado
- Alarma
- Alta Seguridad
- Apartamento de Servicio
- Armarios Empotrados
- Bañera con Hidromasaje
- Calefacción Gas Propano/Butano
- Cenador
- Chimenea
- Cobertura Fibra Óptica
- Cocina Diseño
- Cuarto de Lavado/Plancha
- Despensa
- Garaje Privado
- Jardín Privado
- Piscina Climatizada
- Piscina Privada
- Sala de juegos
- Terraza
- Trastero
- Urbanización Privada
Detalles
- ID M-1995177
- Precio 2.650.000€
- m² construidos 1022 m²
- m² parcela 2097 m²
- Dormitorios 9
- Baños 7
- Plazas de parking 6
- Nº de plantas 3
- Año de construcción 2000
- Tipo Chalet Independiente
- Estado Vendido
Certificado Energético
- Certificado de eficiencia energética: F
- A
- B
- C
- D
- E
- | Clase FF
- G
Dirección
Abrir en Google Maps- Municipio/Localidad: Las Rozas
- Provincia: Comunidad de Madrid
- Código postal: 28232
- Barrio/Urbanización: La Chopera
Programar una visita
Propiedades similares
Espléndido Chalet Modelo Encinar, Eficiente y con gran parcela
Pozuelo de Alarcón, Monteclaro Saber másNota:
1. Los m² que ofrece Ketier en esta página web han sido proporcionados por los propietarios o extraídos del catastro en caso de que el propietario los desconozca.
2. La descripción e información de los inmuebles puede contener errores. Se muestra un título informativo y no es contractual ni vinculante.
3. No cobramos honorarios al comprador.



