Resumen
- Chalet Independiente
- 7
- 7
- 864 m²
- 3600 m²
- 1979
Descripción
Kétier presenta este precioso chalet independiente ubicado en la exclusiva urbanización Club de Golf Las Rozas.
La magnífica vivienda destaca por sus preciosas vistas al campo de golf, así como por su amplia parcela de 3.600 m² que cuenta con un fabuloso jardín y piscina privada.
Esta fantástica parcela alberga 600 m² de vivienda; otros 300 m² de edificaciones anexas; aljibe y pozo propios, escriturados, con más de 24.000 litros de capacidad que permiten el riego del amplio jardín (que actualmente está automatizado) y el llenado de una gran piscina de 2,5 m de profundidad, lo que conlleva un ahorro significativo en el consumo de agua.
La vivienda cuenta con una cómoda y funcional distribución en 3 plantas.
Planta Principal
Esta planta esta conformada por un amplio vestíbulo, un gran salón con chimenea y zona de comedor independiente, una vanguardista cocina de 72 m², un dormitorio en suite con vestidor y cuarto de baño completo, otros 3 dormitorios, 2 cuartos de baño completos, 1 aseo. Toda esta planta ha sido reformada hace dos meses y cuenta con las mejores calidades.
Primera Planta
En esta planta encontramos un despacho con muebles de madera a medida y acceso a la terraza, un salón con chimenea y acceso a otra terraza y un dormitorio con cuarto de baño completo.
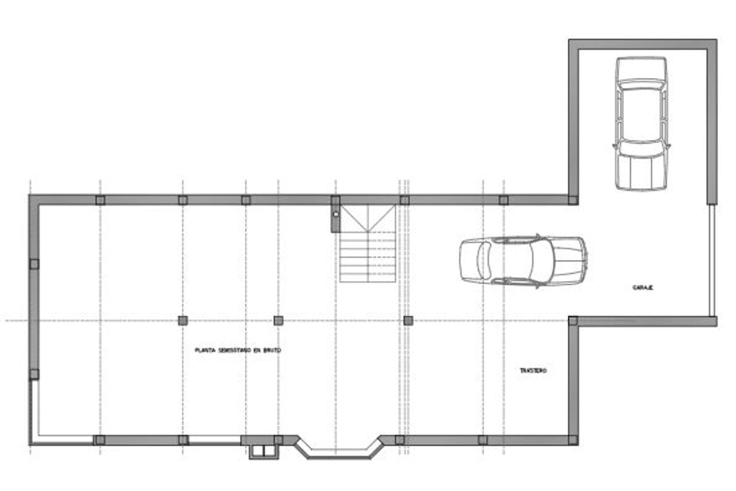
Planta Baja
Esta planta cuenta con 2 bodegas de las cuales una abovedada, un amplio garaje con capacidad para dos vehículos, un trastero, dos grandes estancias con armarios empotrados, un cuarto de baño y una zona de instalaciones de aerotermia.
Esta planta tiene calefacción y aquí existe la posibilidad de añadir 300 m² a la vivienda, superficie que actualmente es en bruto, pero accesible y transitable.
Calidades
Esta magnífica vivienda cuenta con excelentes calidades, entre ellas destacamos:
- Cubiertas de la vivienda totalmente en auténtica teja árabe.
- Tarima y viguería estructural de roble macizo en varias de las estancias y porches.
- Puertas de roble macizo cepillado en toda la casa.
- Muebles de diseño italiano de gran calidad en cocina.
- Una gran isla en la cocina con encimera de Silestone en dos niveles.
- Baños reformados con lo último en diseño y calidad en saneamientos y accesorios.
- Las griferías son de primera calidad con válvulas termostáticas.
- Duchas de diseño, sin perfilería metálica y en vidrio en su totalidad.
- Las instalaciones de fontanería y saneamiento son totalmente renovadas.
- Calefacción de gasoil con depósito con capacidad para 1.000 litros en edificación anexa.
- Instalaciones eléctricas sectorizadas, con varios cuadros eléctricos, todo ello recién reformado.
- Instalación de aerotermia de gran ahorro para el agua caliente.
- Instalación de alarma.
- En el vestíbulo y el salón de la planta baja el suelo es de barro cocido.
- La cocina y los baños cuentan con suelo porcelanico
La Urbanización
Este singular chalet se encuentra en la exclusiva urbanización Club de Golf en Las Rozas de Madrid.
Esta magnífica urbanización cuenta con un campo de golf de 18 hoyos, piscina, instalaciones de tenis y paddle y un club social con piscina y restaurante. Además, aquí encontraras todos los servicios necesarios, una gran oferta comercial, de ocio y educativa, centros médicos y restaurantes. A tan solo cinco minutos se encuentra el centro comercial Las Rozas Village y prestigiosos colegios privados y concertados.
Excelente comunicación tanto en transporte publico, como en privado. La urbanización es muy próxima a la estación de tren de Las Rozas, cuenta con acceso por la A6, M50 y desde aquí se llega a Madrid en tan solo 15 minutos.
La seguridad es otro aspecto destacable, la urbanización está cerrada y cuenta con vigilancia las 24 horas.
Vivir aquí es vivir con una excepcional calidad de vida. Ponte en contacto con nosotros y estaremos encantados de enseñarte esta vivienda única.
Detalles
-
ID M-3454-05228
-
Precio 1.590.000€
-
m² construidos 864 m²
-
m² parcela 3600 m²
-
Dormitorios 7
-
Baños 7
-
Nº de Plantas 3
-
Año de contrucción 1979
-
Tipo Chalet Independiente
-
Estado Baja, Vendido
Dirección
Abrir en Google Maps-
Localidad: Las Rozas
-
Provincia: Comunidad de Madrid
-
Zona/Urbanización: Club de Golf
Inmuebles similares
Nota:
1. Los m² que ofrece Kétier en esta página web han sido proporcionados por los propietarios o extraídos del catastro en caso de que el propietario los desconozca.
2. La descripción e información de los inmuebles puede contener errores. Se muestra un título informativo y no es contractual ni vinculante.
3. No cobramos honorarios al comprador.



























































































