Chalet Independiente en Bonanza (Boadilla)
- 1.695.000€
- 1.695.000€
Resumen
- Chalet Independiente
- 5
- 5
- 523 m²
- 2300 m²
- 2002
Descripción
En una de las urbanizaciones más exclusivas y tranquilas de Boadilla del Monte, Bonanza, se alza este elegante chalet independiente de 523m² construidos sobre una magnífica parcela de 2.300m², rodeado de naturaleza, privacidad y con excelentes comunicaciones con Madrid.
Construida en 2002, la vivienda destaca por su arquitectura atemporal, el uso de materiales nobles como piedra natural y madera, y una cuidada distribución que prioriza la amplitud, la luminosidad y la conexión con el exterior. Sus techos altos y la ventilación cruzada natural refuerzan una sensación constante de confort y bienestar.
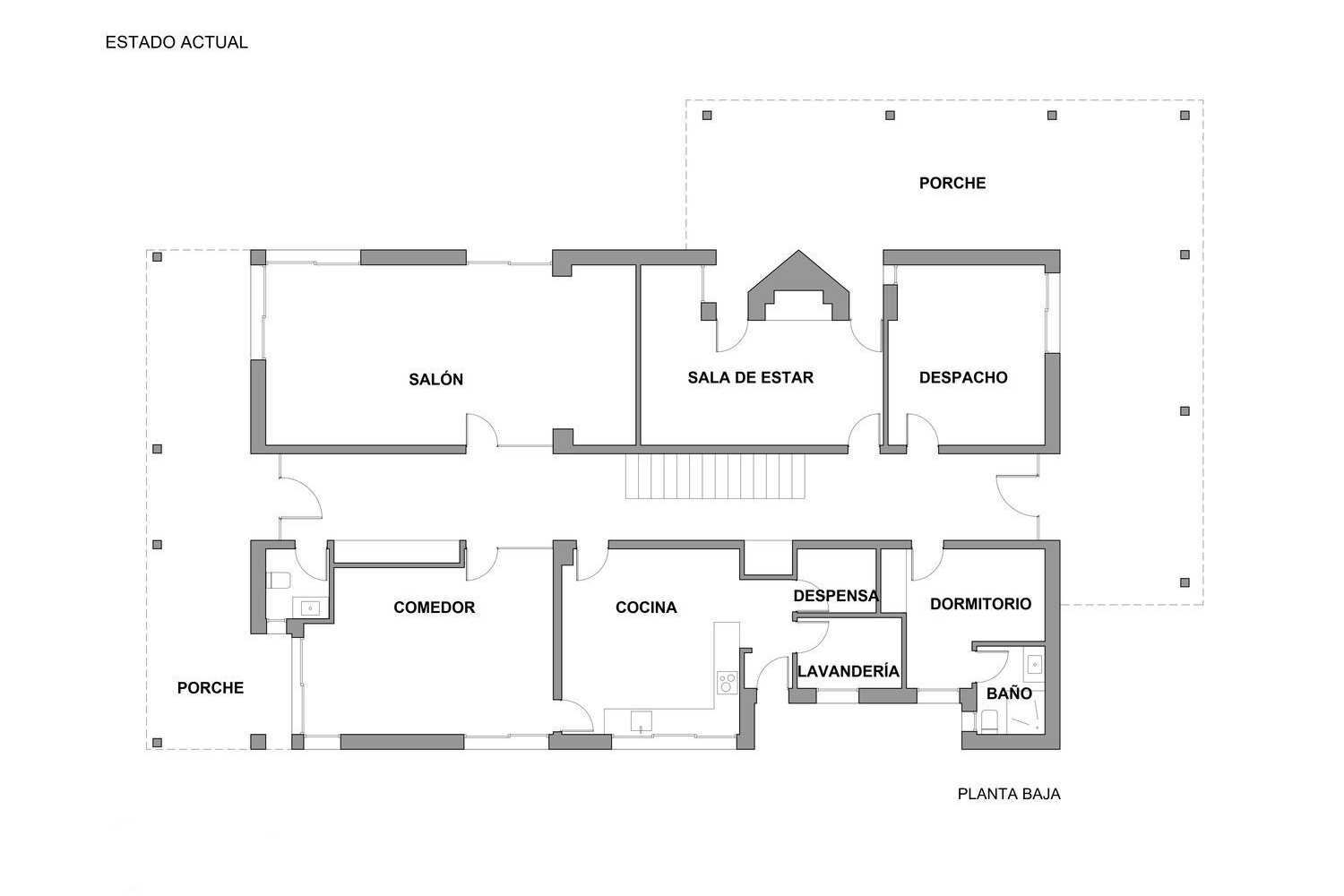
Planta Principal – Zona de día
La entrada da paso a un amplio y elegante pasillo longitudinal que atraviesa la vivienda y conecta visualmente con el jardín, aportando orden, profundidad y una gran sensación de espacio.
En esta planta se encuentran las principales estancias de día. El salón principal es un espacio amplio, muy luminoso, ideal para reuniones y vida familiar y tiene acceso directo al jardín y al porche. El comedor está conectado de forma directa con la cocina y pensado para un uso funcional.
La cocina es un espacio amplio, con zona office, despensa y lavandería independiente, además de acceso directo al exterior para facilitar el día a día. Cuenta con muchos armarios, electrodomésticos de alta gama y una cálida decoración en tonos de madera.
En esta planta encontramos también una sala de estar muy acogedoray perfecta como zona de descanso, un despacho amplio y luminoso, ideal como espacio de teletrabajo, estudio o sala de lectura, un dormitorio en suite con cuarto de baño completo con ducha que es perfecto como habitación de invitados. Completa esta planta un aseo de cortesía, estratégicamente ubicado.
La distribución de esta planta permite diferenciar claramente las zonas sociales, manteniendo siempre una conexión fluida entre interior y exterior.
Primera Planta – Zona de descanso
La planta superior alberga la zona de noche, diseñada para garantizar privacidad y máximo confort. Dispone de cuatro dormitorios y tres baños completos.
En la parte izquierda de la casa se ubica la suite principal que cuenta con vestidor, baño en suite, concebida para ser un auténtico refugio privado y un dormitorio doble con acceso a otro baño completo. A la izquierda podemos encontrar otros dos dormitorios dobles, amplios y luminosos, que comparten un tercer baño completo.
Todos los dormitorios cuentan con una excelente entrada de luz natural y una distribución funcional pensada para el confort diario.
Planta Baja
Esta planta está conformada por dos espacios diferenciados, uno es una bodega de almacenaje y otro es una habitación que se puede utilizar como espacio polivalente u otro espacio de almacenamiento.
La Parcela
El exterior es uno de los grandes protagonistas de la vivienda. El jardín rodea completamente la casa, ofreciendo privacidad absoluta y distintos ambientes para disfrutar al aire libre. Diseñado con un marcado estilo mediterráneo, combina grava blanca, vegetación autóctona y plantas escultóricas, con espectaculares aloes vera de gran tamaño.
Destaca un amplio porche cubierto, perfecto para comidas y cenas al aire libre, junto a una zona de barbacoa completamente equipada.
La piscina salinizada de 13 metros, integrada en el entorno y rodeada de césped natural, completa una experiencia exterior pensada para el descanso y el disfrute.
Calidades, tecnología y seguridad
La casa ha sido diseñada con altos estándares de confort y eficiencia:
- Ventilación cruzada natural
- Calefacción por radiadores individuales, con control independiente
- Sistema de domótica: control de temperatura, persianas y luces desde la vivienda o el móvil
- Seguridad privada 24 horas
- Sistema de barreras láser en ventanas, que garantiza máxima protección sin alterar la estética
En esta propiedad encontramos también un garaje cubierto con capacidad para tres vehículos y zona de aparcamiento exterior para invitados.
La Urbanización
La urbanización Bonanza es una de las zonas residenciales más consolidadas y valoradas de Boadilla del Monte, reconocida por su entorno natural, su baja densidad de edificación y la privacidad que ofrece a sus residentes. Se trata de un enclave ideal para quienes buscan tranquilidad y espacio sin renunciar a la cercanía con el centro de Madrid.
Rodeada de amplias zonas verdes y próxima a espacios protegidos como el Monte de Boadilla, Bonanza destaca por su carácter familiar y su ambiente sereno, donde predominan los chalets independientes sobre grandes parcelas. Las calles amplias, arboladas y poco transitadas refuerzan una sensación de bienestar y seguridad difícil de encontrar en otras zonas residenciales.
La ubicación es especialmente estratégica: a pocos minutos se encuentran colegios nacionales e internacionales de prestigio, centros deportivos, campos de golf, comercios y todos los servicios necesarios para el día a día. Además, cuenta con excelentes conexiones por carretera (M-50, M-40 y A-6), lo que permite un acceso cómodo y rápido a Madrid capital y a otras zonas clave de la Comunidad.
Bonanza representa un estilo de vida marcado por la privacidad, el contacto con la naturaleza y el confort, convirtiéndose en una de las mejores opciones para quienes desean una vivienda exclusiva en un entorno residencial de alto nivel, perfectamente comunicado y pensado para disfrutar del tiempo y del espacio con total tranquilidad.
Si buscas privacidad, espacio y calidad de vida en una de las mejores zonas residenciales de Boadilla del Monte, te invitamos a conocer una propiedad excepcional. No dudes en ponerte en contacto con nosotros para concertar una visita y descubrir todo lo que este precioso hogar puede ofrecer.
Caracteriticas
Detalles
-
ID M-1726428
-
Precio 1.695.000€
-
m² construidos 523 m²
-
m² parcela 2300 m²
-
Dormitorios 5
-
Baños 5
-
Plazas de Garaje 3
-
Nº de plantas 3
-
Año de Contrucción 2002
-
Tipo Chalet Independiente
-
Esado En Venta
-
Aseos 1
Detalles Adicionales
-
Consumo energía 275,00 Kw h/m2 año
Planos
- 1
- 1
Dirección
Abrir en Google Maps-
Localidad: Boadilla del Monte
-
Provincia: Comunidad de Madrid
-
Código Postal: 28669
-
Barrio/Urbanización: Bonanza
Solicitar una visita
Por favor facilítenlos su información de contacto
Calculo de Hipoteca
-
1º pago
-
Importe del Préstamo
-
Cuota Mensual
Propiedades Similares
Excepcional Chalet en Villafranca del Castillo
Villanueva de la Cañada, Villafranca del Castillo DetallesEspléndido Chalet Modelo Encinar, Eficiente y con gran parcela
Pozuelo de Alarcón, Monteclaro DetallesNota:
1. Los m² que ofrece Ketier en esta página web han sido proporcionados por los propietarios o extraídos del catastro en caso de que el propietario los desconozca.
2. La descripción e información de los inmuebles puede contener errores. Se muestra un título informativo y no es contractual ni vinculante.
3. No cobramos honorarios al comprador.

















































































